Villa indeling
Op deze pagina vindt u een gedetailleerde beschrijving van de indeling van Villa Marsel. Ontdek de lichte leefruimte met open keuken, slaapkamers met comfortabele bedden en prachtige tuin die deze accommodatie uniek maken. Bekijk hier alle beschikbare ruimtes en plan uw ideale verblijf aan zee.
Aan de hand van foto's krijg je alvast een eerste indruk van de sfeer en inrichting op elk niveau van het huis.
Onderaan deze pagina vind je de plattegronden van elk verdiep voor een duidelijk overzicht van de indeling.

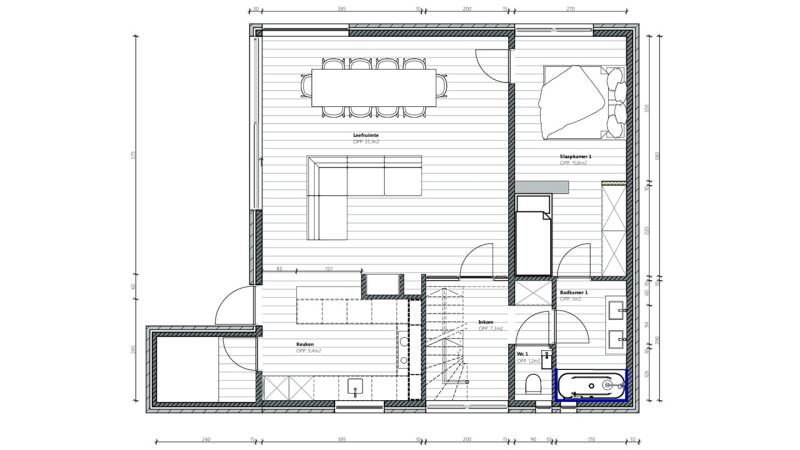
Benedenverdieping
De benedenverdieping van Villa Marsel is een open, lichte ruimte die perfect is voor ontspanning en gezellig samenzijn. Dankzij de grote ramen heb je een onmiddellijke connectie met de tuin.
De living is ruim en comfortabel, met een uitnodigende zithoek waar je kunt relaxen bij de haard.
De open keuken is volledig uitgerust en ideaal voor het bereiden van heerlijke maaltijden. Geniet van gezellige diners in het comfort van uw eigen vakantieverblijf.
Op deze verdieping bevindt zich ook een slaapkamer met een dubbelbed en een stapelbed, perfect voor gezinnen of groepen.
Daarnaast is er een badkamer en een apart toilet.











Bovenverdieping
De bovenverdieping beschikt over drie slaapkamers, allemaal voorzien van comfortabele dubbele bedden en voldoende kastruimte. In de grootste kamer is ook een babybedje voorzien. Geniet van een goede nachtrust na een dag vol ontspanning aan zee.
De verdieping heeft ook een badkamer en een apart toilet.






Private tuin
De villa is omgeven door een mooie tuin, met een terras waar je heerlijk kunt genieten van een barbecue met familie en vrienden.
Voor de kinderen en actieve gasten is er een speelplein, een petanqueplein en een pingpongtafel waar je plezierige momenten kunt beleven.
De tuin is dan ook de ideale plek om te ontspannen en te genieten van het buitenleven.






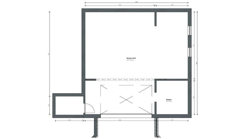
Hobbykamer in de garage
Onder de vakantiewoning vind je de hobbykamer, die perfect is voor ontspanning en plezier. De garage is omgevormd tot een hobbyruimte waar je je helemaal kunt uitleven. Speel een potje pool aan de pooltafel, daag je vrienden uit voor een spannend wedstrijdje voetbaltafel, of test je precisie met een rondje darten. Of is pingpong meer jouw ding? Deze ruimte biedt volop vermaak voor iedereen, ongeacht het weer buiten!



Plattegronden
Hier vind je de plattegronden van elk verdiep, zo krijg je een duidelijk overzicht van de indeling van Villa Marsel.
Bovenverdieping

Gelijksvloers

Garage / Hobbykamer

Neem vandaag nog contact met ons op!
Heeft u interesse in het huren van onze vakantievilla of heeft u vragen over de indeling? Aarzel dan niet om contact met ons op te nemen. Wij helpen u graag verder.